We accept crypto (only for selected properties)

We accept crypto
(only for selected properties)

(SOLD) Bespoke 4 Bedroom Seaview Villa in Chaweng Noi for sale

CODE: S0502
Sold
x 4 - 5
x 5
  to wishlist

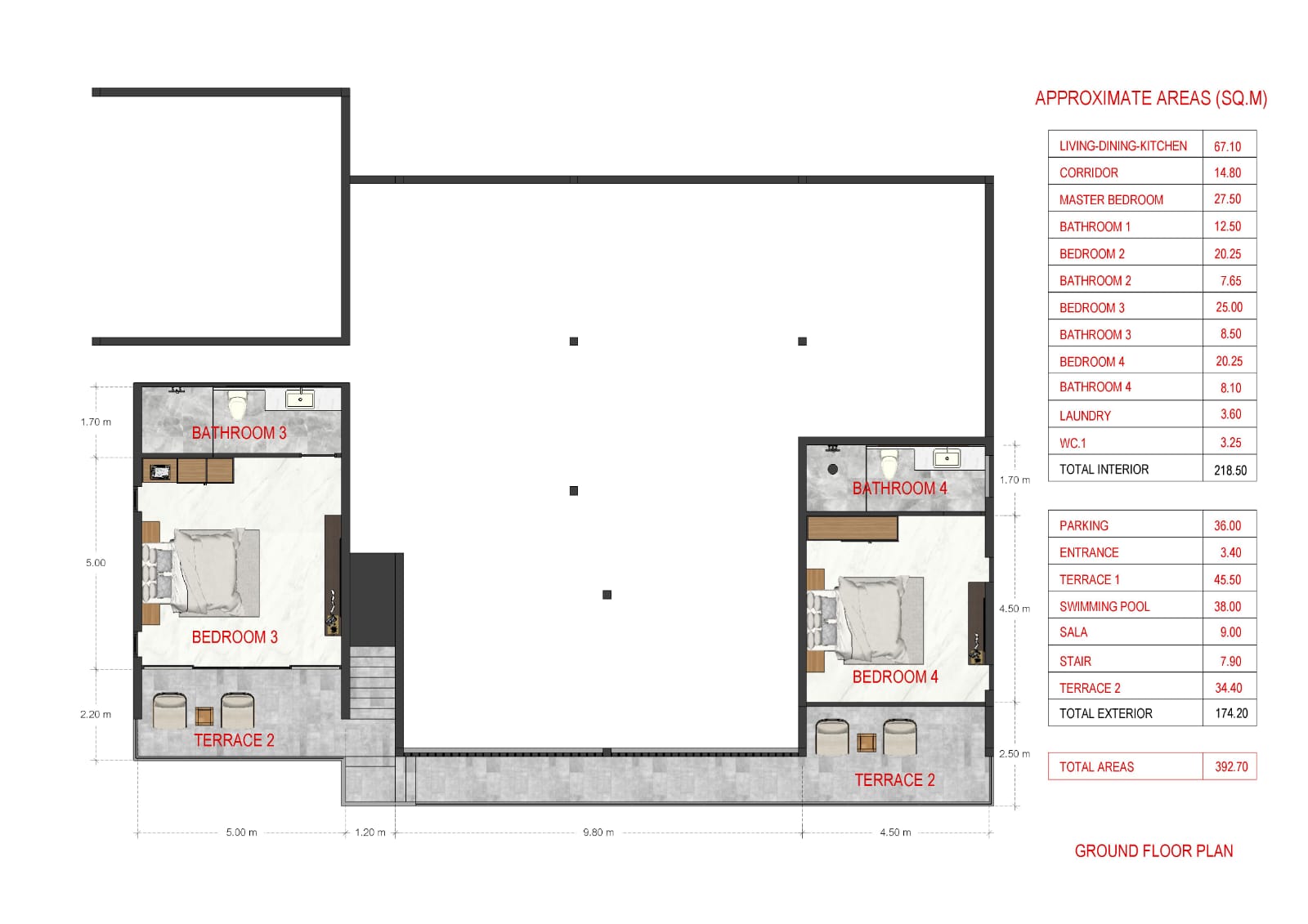
This off-plan villa is conveniently located in a prime location of Chaweng Noi in a 8-unit villa community, it has an easy access from the main road and it is closely situated to the end of Chaweng Beach. The construction of this villa will take 8-10 months to complete and comes in 4 Bedroom 5 Bathroom with outdoor Sala.

Key Feature:
·    Located in Chaweng Noi
·    Seaview, 2km to Chaweng Beach
·    2 Floors
·    Swimming pool 3.8m x 9m
·    Fully furnished
·    8 to 10 Months construction period
·    Payment plan according to construction progress
·    No Communal fee
·    Government electricity
·    Communal deepwell THB 150/cbm
·    Land size 445 sqm
·    Interior size 238 sqm
·    Chanote title
·    Freehold ownership
·    For Sale with Thai Company

** SOLD **

map